Case

開業事例

お客様の生涯の美を支える「かかりつけサロン」を目指して

utatane hair &spa

  • 2026年2月開業
  • 東京都足立区
  • 11坪

オーナー 浜野 仁美

1年半前開業を意識

10か月前相談スタート

OPEN!

長年の大手サロン勤務の中で生まれた変化が、開業のきっかけに

浜野 仁美(以下、浜野):高校時代に美容に興味を持ち、自然とこの道へ。お客さんとして通ったり研修でさまざまなサロンを見る中で、最終的に就職先として選んだのは大手サロンです。歴史と実績があることはもちろん、いきいきと長く働かれている方が多い印象を受け、「ここで働きたい」と思い就職を決めました。
美容師人生がスタートし、一社で長年働き続ける中で、さらなるステップアップを目指し、「もし店長になったらこんなことをやってみたい!」と、自分なりの想いをノートに書き出したりしていたんです。実際に店長職も経験しながら、ひたむきにキャリアを積み重ねてきた18年でしたね。
その一方で、私自身がカラー剤に含まれる"ジアミン"のアレルギーを発症してしまったんです。美容師としての大きな壁に直面し、"ノンジアミンカラー"について学んだことで、同じ悩みを持つ方の不安を解消したいと思うようになりました。さらに、今通ってくださっている40〜50代のお客様の生涯に寄り添ってケアしたいという思いから、介護の初任者研修を取得。訪問美容も見据えて福祉分野の学びを深めていくのですが、"お一人おひとりと深く関わる働き方を追求したい"という想いがありながら、組織の中にいてはなかなか実現することができない葛藤がありました。そこで自分でお店を持てば叶えられるかもしれないと思い立ち、開業に向けて一歩を踏み出しました。

相談の中で見えてきた、"お客様の人生に寄り添うサロン"

浜野:開業について調べる中で、大手のタカラベルモントさんが開業セミナーを開催していることを知りました。セミナーに参加した後、すぐに個別相談をお願いし、そこから開業に向けた準備が一気に動き出しました。
当初は福祉系の資格をいくつか取得していたこともあり、自然とご高齢の方に向けたサロンにしたいという考えになっていました。ところが、担当の山本さんと事業計画を練って整理していくうちに、自分が本当にやりたい方向性とは少しずれていることに気がついたんです。私が作りたいのは"ご高齢の方だけを対象とする場所"ではなく、"大切なお客様と長くお付き合いし、人生の変化に生涯寄り添い続けられるようなサロン"でした。
出店地には地元である足立区を選び、北千住の静かな住宅街にお店を構えたことで、意外な反響もありました。ノンジアミンカラーを専門的に扱うサロンは都心に集まっているのですが、当サロンで取り扱っていることを知って、遠方から足を運んでくださったお客様がいらっしゃったんです。北千住は多くの路線が乗り入れているため、埼玉や千葉などの隣県にお住まいのお客様にも通いやすい場所だと思います。そうした方々のお役に立てていると感じると、この場所を選んでよかったと実感しています。

本質的な美を追求。心身を癒す「理想の環境」

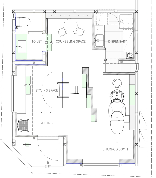
浜野:サロンのコンセプトである「お客様に生涯寄り添うケア」を形にするため、シャンプーやトリートメントなどの粧材、そして設備選びには一切の妥協をせず、納得いくまで時間をかけました。採用した整体ヘッドスパの「ピトレティカ」は、タカラさんからご提案いただきました。「頭皮を整えることで全身の美しさへ繋げる」という本質的な考え方が、私の目指すサロンの方向性とぴったりでした。実際に自分自身で体感し、確かな効果を感じたことが導入の決め手となりました。
設備で特に気に入っているのは、タカラさんで最上位クラスのシャンプー台「YUME II」です。座った瞬間に全身を包み込まれるような安心感は、一度体験すると「もう他には戻れない」と感じるほどの心地よさでした。お客様に究極のリラックスを提供できるのはもちろん、首や腰への負担が少ないため、バリアフリーの観点からも幅広い年齢層の方に自信を持っておすすめできます。タカラさんの優れた製品の中からこだわって選び抜き、心と体を癒す理想的な環境を整えることが叶いました。

髪の"かかりつけ医"として、一人ひとりに最適なケアを

浜野:店名の「utatane(ウタタネ)」には、眠ってしまうほど心から安らげる場所でありたい、という想いを込めました。髪や頭皮の変化に悩むお客様にとって、どんな些細なことも相談できる「かかりつけ医」のような存在を目指しています。その想いを形にするため、当店ではすべてのメニューにヘッドスパを標準で組み込みました。お客様の髪の健康を預かる立場として、本当に必要なケアをオプションにすることに違和感があったからです。
また、年齢を重ねても生涯通い続けていただけるよう、段差のないバリアフリー設計にすることも譲れない条件でした。理想は、お友達の家に遊びに行くような感覚で、肩の力を抜いて立ち寄れる場所。施術の前後にお茶を飲みながらゆっくりお話しできるよう、テーブルと椅子を置いたカフェのようなスペースも設けています。お一人おひとりと丁寧に向き合い、目の前のお客様のためだけに全力を尽くせる今の働き方に、大きなやりがいを感じています。まだ開業したばかりなので、お客様のご意見も大切にしながら一緒に良いサロンを作っていけたらと思っています。

植物に囲まれ、益子焼を眺めながら過ごすモダンな癒し空間

浜野:店舗デザインの希望としては、幼い頃から実家で慣れ親しんできた植物や、益子焼の温かみを取り入れ、お客様が心から安らげる場所にしたいと考えていました。この想いをデザイナーさんが忠実に汲み取ってくださいました。

設計デザイナー 城間:こだわったのは、徹底した「非日常感」への演出です。プライバシーに配慮し、外から中が見えない入口のデザインを採用。エアコンなどの設備を隠すことで生活感を排除しました。益子焼と同じ栃木県産の「大谷石」を使い、壁面や足元にアクセントとして取り入れることで、モダンな落ち着きをもたらしています。また、天井と床を繋ぐワイヤーに植物を這わせた目隠しを設置し、まるで自然の中にいるような心地よさを演出しました。通常は配管を通すために床を一段高くして隠すことが多いのですが、バリアフリー設計としてお客様が通る動線をフラットにするため、配管を壁側のボックスに格納して段差を作らないように工夫しました。施工事例が少なかったため、検証と調整を重ねながら作り上げていきました。

浜野:タカラさんは美容室づくりを知り尽くしていて、デザイン性だけでなく日々の営業をスムーズにする動線までも完璧に設計してくださいました。お店が完成した時、感動で涙が溢れ、「第2の美容人生がいよいよ始まるんだ」と胸が熱くなったのを鮮明に覚えています。掲げたコンセプトにどこまでも寄り添い、私一人では気づけないような細部にまで配慮が行き届いているので、プロにお願いしてよかったと心から感じています。

それぞれの個性に寄り添い、チームの力で実現へと導く

営業担当 山田:今回は開業準備の早い段階から携わらせていただいたことで、紆余曲折しながらも構想が形になっていく過程を一緒に歩む事ができました。こだわりが詰まったお店づくりに寄り添いながら、特注品導入のフォローアップなど、細部までしっかり伴走することができて良かったと思います。浜野さんは発言一つ一つが前向きで、最初から決断力がある方だと感じていました。そんなお人柄だからこそ、自分の作りたいサロンを実現できたのだと思います。オーナー様が何を選び、どのように判断されるかによって、サロンづくりにそれぞれの個性が表れてくると感じています。その実現に向けて、私たちがサポートしていければと考えています。
 
開業支援担当 山本:今は何でもAIに聞けばそれなりの答えが出てきますが、我々には長年の経験や現場で培われた感覚から生まれる答えがあります。浜野さんにもその点を高く評価していただいたので、お役に立てて良かったと思っています。チャレンジ精神があって経験豊富な方だったので柔軟に進めることができ、一つのチームとなってみんなで良いお店づくりができたと思います。もし今、考えがまとまらず不安を感じている方がいらっしゃっても、まずは一歩踏み出して、気軽にプロへ相談してください。
開業支援担当者
タカラベルモント 山本
営業担当者
タカラベルモント 山田
デザイナー
タカラスペースデザイン 城間
化粧品(ピトレティカ)担当者
タカラベルモント 濱野

美容室・理容室開業をお考えの方はお気軽にご相談ください!