Case

開業事例

5ヶ月で叶えた、オーナーこだわりの"西海岸風リゾートサロン"

whole lotta love

  • 2025年11月開業
  • 東京都国分寺市
  • 11坪

オーナー 志村 正和

5年前開業を意識

5か月前相談スタート

OPEN!

25年目の決断で生まれた自分の店

最初は「楽しそうだな」という、興味本位で美容師の道に進みました。通信で学びながら、地元・八王子の美容室で働き始めたのがスタートです。その後店舗を移動し、国分寺の店舗では20年近く勤めたので、この地域にはとても親しみを感じています。
自分でお店を持とうと思ったきっかけは、コロナの影響が大きかったかもしれません。お客様も美容師も減り、さらに経営方針の変化など身の回りの環境が大きく変わっていく中で、開業を真剣に考えるようになりました。そんな矢先、勤めていた店舗の閉店が決まりました。「開業するならこのタイミングだ」と直感的に思い、迷っている時間はありませんでした。継続して足を運んでくださっているお客様も多くいらっしゃったので、あまり間を空けたくなかったんですよね。
開業を決断してからは、とにかく急いで進めようと本格的に動き出しました。開業について調べていく中で、タカラベルモントさんの開業セミナーにたどり着きました。タカラさんのことは、高品質なサロン用機器を扱っているメーカーとして以前から信頼していたので、初めからサポートをお願いするつもりで参加しました。セミナー後すぐに個別相談をお願いし、そこで開業支援担当の山本さんに自分がやりたいことを率直にお伝えしました。そこから一気に開業準備が進み始めました。

時間がない中で、完璧に導いてくれたタカラさんのサポート

開業したい時期まで5ヶ月を切っていたので、とにかく時間がありませんでした。僕は開業について右も左も分からず、どうしたいのかも具体的に決まっていなかったのですが、山本さんが実現可能なプランをすぐに用意してくれました。何をいつまでにやるべきかが明確になったことで、漠然としていた不安が少しずつ整理されていきました。
この期間は、ほぼ毎週のペースで山本さんに会いに行っていましたね。一番大きな学びは、「計画の大切さ」でした。正直、最初は物件さえ決めればいいと思っていたんです。でも、事業計画がなければ銀行も不動産屋も信用してくれない。計画があって初めて前に進めるのだと教えていただき、どのように進めるべきか一つひとつ導いていただきました。迷った時も立ち止まらずに進めたのは、常に道筋を示してもらえたからだと思います。
中でも一番大変だった点は、物件探しと融資です。融資を受けるタイミングで物件が必要なので、物件探しを同時進行で進めなければいけませんでした。そんな中ちょうど運良くこの物件が見つかり、希望していた国分寺エリアで決めることができました。山本さんには開業準備のあらゆる面で支えていただき、本当にありがたかったです。

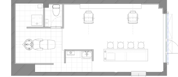
西海岸にあるカフェバーを意識した雰囲気づくり

僕はサーフィンが好きなので、お店のコンセプトを"西海岸にあるようなくつろげるカフェバー"にしました。壁は白を基調にし、木目調の温かみのあるカウンターを設置しました。ポイントは、天井に取り付けたルーバー(木組み)です。ファッションブランド「ロンハーマン」の店舗デザインでよく見かけて憧れがあったので、どうしても木目のルーバーを取り入れたかったんです。あとはカウンター側の壁にある非常口のドアが悪目立ちしていたので、自分で壁と同じ白のブラインドを取り付けて隠したところも工夫のポイントですね。
タカラさんからは、"壁に筆記体の店名を入れてオリジナリティを出す案"や、"3〜4名を一度に映せる横一面の大型ミラー"などをご提案いただき、どれも雰囲気に合っていたのでそのまま採用しました。大きな鏡にしたことで空間がより広く見えるようになり、椅子の配置も柔軟に変えられるようになりました。将来的なレイアウト変更にも対応できるのはありがたいですね。スタイリングチェアは実際に自分で座ってさまざまな製品を試させてもらい、座り心地を重視してラフシリーズを選びました。色もさわやかで良いアクセントになっています。
短い準備期間でしたが、細部までこだわった空間をつくることができました。お店が完成した時は本当にうれしかったですね。おかげさまで思い描いていた通りのお店に仕上がりました。あとは、どうしてもサーフボードを飾りたくて(笑)。それが今後の楽しみの一つです。

"お客様に尽くしたい"という想いを実現するために

店名の「Whole Lotta Love」は、「胸いっぱいの愛を」という意味があります。お客様一人ひとりに目一杯尽くしたい、という想いから名付けました。"お客様が心からリラックスできる時間を提供したい"という想いから、僕が知る中で一番寝心地がいいYUMEシリーズのシャンプー台を導入しました。完全にフラットになり、首元への負担が少ない点が特に気に入っています。自分でお店を持つなら絶対にYUMEシリーズのシャンプー台を入れたいと思っていたので、今回それが叶ってとても嬉しいです。
さらに、理想のヘッドスパ環境を整えたくて、「活泡泉」という「大小の泡を含んだ湯水」を生成できるJETCUBEも採用しました。タカラさんには上質な機器や設備が豊富に揃っており、幅広いラインナップの中から製品をご提案いただきました。数ある選択肢の中から、自分のサロンで使う製品を一つひとつ選び抜いたことで、「自分のサロンを持つ」という実感につながったと思います。ヘッドスパで取り入れているエステシモや、ルベルカラー剤のエドルもその一つです。お客様にとって本当に価値のあるものを提供したいという想いで選びました。それがサロンの価値を高め、長く通っていただける理由になると信じています。今は技術向上のためにタカラさんのヘッドスパ講習を受け、さらにおもてなしの質を高められるよう努めています。

接客スタイルを自分で決められる自由さは代えがたい

開業して3ヶ月ほど経ちましたが、一人でお店を運営してみて一番違いを感じたのは接客スタイルです。以前は数人で対応し、とにかく数を多くこなすことが重要でした。今はアシスタントを置かず、受付から仕上げまで全工程を自分一人で担当しています。その分、お一人おひとりにゆっくりと対応できている実感があります。
お話もじっくり聞けますし、お悩みやご要望に合わせた柔軟な提案ができるようになりました。施術の時間そのものが、より濃く意味のあるものになったと感じています。
一人で営業するということは大変なことも多く、責任もすべて自分に返ってきますが、最初から最後まで一貫してお客様に向き合えることで、やりがいも大きいと感じています。長年親しんできたこの地域でこれからもっと地元の方とつながり、貢献していきたいと思っています。オープン後には、近隣の方がサロンを知って初めて来店してくださることもあり、とても嬉しいです。
もし同じように開業しようと考えている方がいるなら、ぜひすぐに行動してほしいですね。僕にできたのだから、きっと大丈夫です(笑)。何も知識がなくても、タカラさんが必要な手順を教えてくださいます。あとは自分が決断するだけだと思います。

開業支援担当者より

最初に志村さんより、開業時期はずらしたくないとのことでご相談をいただきました。通常は半年から一年ほどを目安に時間をかけて準備を進める方が多いのですが、その時点で開業まで5ヶ月を切っている状況でした。それでもご要望にお応えできるよう、開業目標時期から逆算したスケジュールを組み、スピード感を持って進める形となりました。
当初は事業計画も白紙に近い状態でしたので、まずはやりたいことを一つひとつ丁寧に引き出し、具体化していきました。志村さんにはお忙しい中でも何度も足を運んでいただき、二人三脚で進めて無事目標の時期にオープンすることができました。今回の開業は、志村さんの努力があってこそ実現できたものだと思います。
開業には多くの時間と労力がかかります。私たちタカラベルモントの開業支援は、短期間やどんなご状況であったとしても、開業を実現するための支援をしています。ご事情をお伺いしながら最適な開業サポートをさせていただきますので、お気軽にご相談ください。 
開業支援担当者
タカラベルモント 山本
営業担当者
タカラベルモント 青木
デザイナー
タカラスペースデザイン 江口
化粧品(ルベル)担当者
タカラベルモント 山口
化粧品(エステシモ)担当者
小谷

美容室・理容室開業をお考えの方はお気軽にご相談ください!