Case

開業事例

相談から内装まで一貫サポート。古民家の新天地で理想をかたちにするまで

TAI hair & spa

  • 2026年1月開業
  • 大阪府大阪市
  • 25坪

オーナー 古市良人

1年半前開業を意識

7か月前相談スタート

OPEN!

美容師としてキャリアを積む過程で芽生えた開業への想い

良人:僕が美容師になった頃は、10店舗以上展開する大型サロンが多い時代でした。まずは若年層に人気がある大阪の中心部のサロンに就職し、そこで上り詰めることを目標にしていました。1日に20人ほどのカットをこなすような忙しい日々を過ごしていました。
開業を初めて意識し始めたのは、目標としていた店長になったタイミングです。「次は何を目指そう?」と考えた時に、カット以外の技術にもこだわりたいという気持ちが強くなりました。ちょうどその頃、美容師からスパニストへ転向していた妻との出会いもあり、ヘアカットとヘッドスパ、それぞれの技術を活かして理想の形でお届けできる未来が楽しそうだな、と思い始めました。

歩:私は結構早い段階から『2人でやろうよ』と言い続けていたんですけど(笑)、夫は自分が「いける!」と確信できるまでは、開業に向けてとても慎重でした。
 
良人:まだまだ経験不足だと思っていたので、2社のサロンで経験を積みました。それぞれの職場で異なることを学んでいく中で、やっと開業に踏み切るための自信ができました。開業への想いは少しずつグラデーションのように強くなりました。

義兄の一言が、昭和町という新天地への扉を開いた

歩:私たちはずっと大阪の中心部にある都会的なサロンで働いていたので、漠然と都心のテナントビルの1室で出店することしか考えていませんでした。でも、物件を探していても家賃も高いし、なんだかしっくりこない日々が続いていました。
 
良人:そんな時、古民家を活用した不動産事業をやっている義兄に相談したんです。その時に「2人でやるなら、古民家を改装したあたたかいサロンが面白いんじゃない?大阪なら昭和町がそういう街だよ」と勧めてもらいました。その一言でなんか突然しっくりきて。GW明けに昭和町で開催される地域のマーケットイベントに連れて行ってもらったら、古くからの商店と新しくおしゃれに改装したお店とが共存する街の雰囲気がすごくよくて。ここで夫婦で静かにゆっくり施術していく未来がちょっと想像できて、そこからお店のコンセプトがどんどん固まっていきましたね。

不安だった新天地での開業が、一度の相談で霧が晴れた

良人:開業を決意してからは動きが早かったです。うちの一番の武器は妻のスパメニューだから、そこには絶対こだわりたいという思いがあって。YUMEシャンプーや頭浸浴などのスパ設備といえばタカラさんという認識はもともとあったので、サイトを調べているうちに開業支援サービスの存在を知って、すぐに連絡しました。
 
歩:開業したいと言いながら何をしたらいいのか2人とも全然わからなくて(笑)。開業資金ってどこで借りるの?くらいのレベルで夫が相談にいきました。

良人:それが初回の相談で、現在の売上や預貯金、融資の可能性まで全部その日のうちに整理していただいて。出店にかかる費用も、毎月の維持費も、借りられる金額の目安も、一気にクリアになりました。さらに、都心を離れて昭和町での出店に不安もあったんですが、御堂筋沿線でいける距離だよね、やりたいコンセプトには合った街だよね、と売上推移のシミュレーションまで出してもらって。一気に不安が拭えました。

歩:夫が相談から帰ってきた時に「『いける』って言ってもらえた!」と明るい顔をしてたんですよね。あの時のことはよく覚えています。相談していなかったら、今も開業できていなかったと思います。

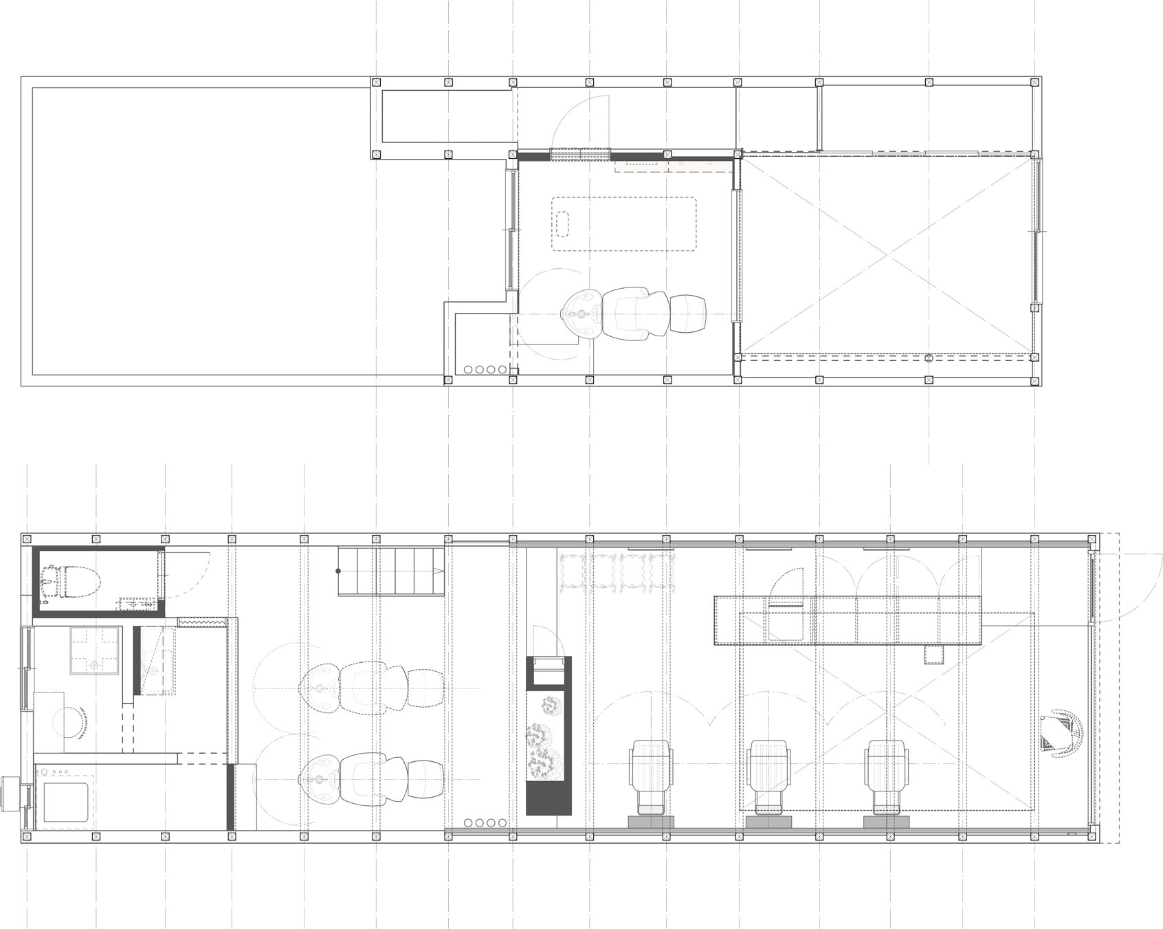
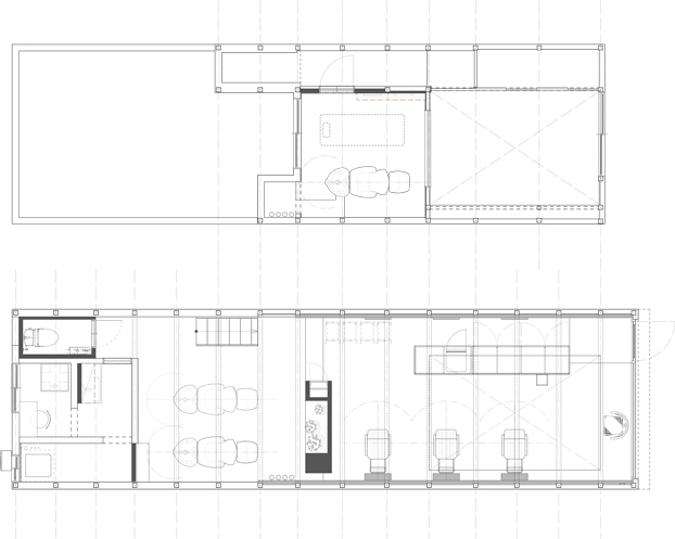
不安だらけの古民家物件が、想像を超えた空間へ

良人:物件は3軒並びの古民家の真ん中で、元々は整骨院が入っていた場所に決めていました。白壁・白天井の空間で、最初に見た時は正直『これってオシャレな美容室にできるの?』と不安でしたね(笑)

歩:まだ内装の契約はしていない段階で、物件が美容室として使えるかどうかを見るために開業支援担当の今里さんとデザイナーの林さんが真夏に汗だくになりながら採寸しに来てくれたんです。しかもエアコンもない中で。その行動力にはとても胸を打たれました。

良人:その場でやりたいイメージを伝えたら、『一回案を作ってみますね』とすぐに3つのレイアウトプランを提案してくれました。その瞬間にタカラさんにお願いしようってなっていました。人と接する仕事をしているので、そういうご縁を大事にしたいなと思って。

歩:内装の打ち合わせはA・B・C案を提示してもらったんですが、一番気に入っていたA案が古民家の壁材の事情で断念することになって。帰宅後に2人で話して、やっぱりA案が良かったよね、という話になって(笑)

良人:正直に伝えたら、スパの個室を2階に設けてシャンプー台を階段で運び上げるD案を新たに練り直してくれたんです。結果として、A案よりもずっと満足のいく空間ができあがりました。古民家を美容室へ改装した事例って少ないそうなんですが、様々な事例を見てこられたタカラさんだからこそ安心して任せることができました。

歩さん:将来スタッフが増えた時のことも見越して、セット面を拡張できる設計にしてくれているんです。デザインの美しさだけじゃなく、お客様も美容師も使いやすい導線まで考えてくれる。美容業界を知り尽くしているタカラさんだからこそだと思います。

昭和町に根を張るサロンへ

歩:2025年1月のオープン以来、既存のお客様からも『すごく落ち着く』『古いものと新しいもののバランスが絶妙』と言っていただいています。訪問してくれたメーカーさんやディーラーさんからも『誰がデザインしたんですか?』と驚かれることもあるんですよ。

良人:開業と共に自宅もこちらに引っ越してきたので、一からこの街に根付こうとしているところです。新しいお店も増えていますが、古くからの商店が多い街なので、僕たちも混ぜていただきたいという気持ちがすごくあって。街の方々が過ごしやすくなるように貢献できるお店にしていきたいですね。

開業について悩んでいる人へアドバイス

良人:1分1秒でも早く相談に行った方がいいと思います。同業の先輩に相談すると、その人の正解しか見えない。でもタカラベルモントさんはいろんな事例のノウハウを持っているから、自分たちのやりたいことに合わせた形で引き出してくれます。相談してなかったら今も開業していなかったと思うので、悩んでいるなら迷わず行ってみてください。
開業支援担当者
タカラベルモント 今里
営業担当者
タカラベルモント 国元
デザイナー
タカラスペースデザイン 林

美容室・理容室開業をお考えの方はお気軽にご相談ください!