Case

開業事例

LINE相談から始まった、ママ美容師の地元開業までの道のり

oto

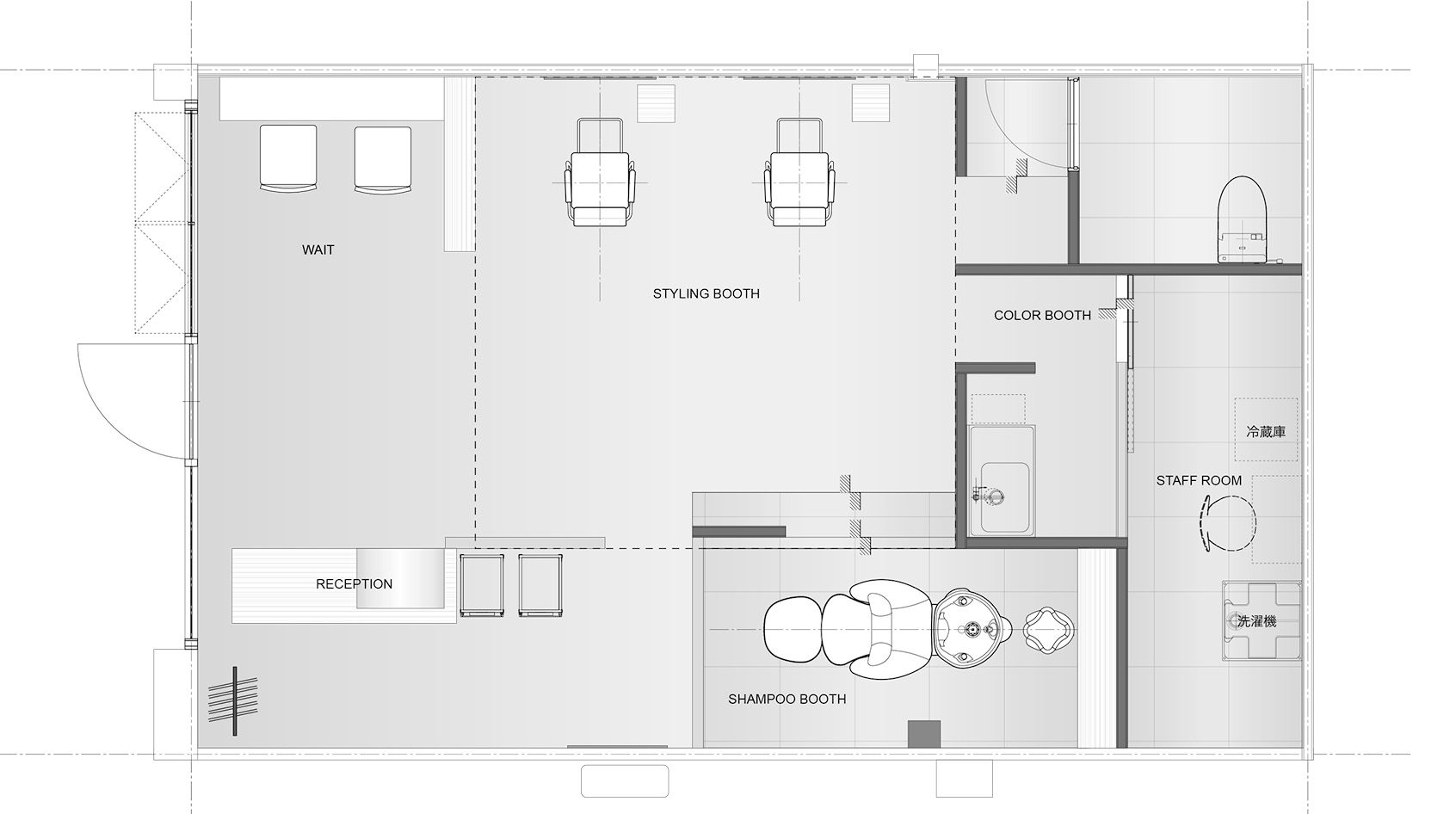
  • 2025年8月開業
  • 石川県小松市
  • 10坪

オーナー 森 ななせ

1年前開業を意識

6か月前相談スタート

OPEN!

40歳を過ぎて見つめ直した、これからの働き方

開業する前の私は、子育てをしながら石川県金沢市にあるサロンまで片道1時間かけて通勤し、美容師として働いていました。 40歳という節目を過ぎた頃、子どもも大きくなり、自分が仕事に割ける時間が増えました。その時に、ふと「このまま遠距離通勤を続けながら働く未来」を想像してみたとき、どうしても自分の中でしっくりこなかったんです。
もともと、私には「独立して自分の店を持ちたい」という強い願望があったわけではありません。むしろ、ずっと勤務美容師として働き続ける未来しか描いていませんでした。ですが、ライフステージが変化し、改めて自分の将来を見つめ直したとき、「地元にUターンして開業する」という選択肢が浮かびました。 地元でなら、もっと長く、自分らしく働き続けられるのではないか。その確信が、開業に向けて動き出すきっかけになりました。

電話が苦手な私でも踏み出せた、LINEでできる開業相談

開業に向けて動き出したものの、何から手をつければいいのか全く分からない状態でした。しかも、私は電話で問い合わせをすることが本当に苦手で(笑)。もっと気軽に相談できる方法はないかと探していたときに出会ったのが、タカラベルモントさんの無料LINE相談でした。
美容業界で圧倒的な実績のある会社なので安心感がありましたし、何より使い慣れたLINEというツールで相談できることで、私にとっての心理的なハードルがぐっと下がりました。そこから、大阪の担当の方と2〜3週間に一度のペースでオンライン打ち合わせが始まりました。最初はZoomの使い方も分からず不安でしたが、有名な会社という信頼感もあり、一歩踏み出すことができました。
周囲からは「オンラインの打ち合わせだけで本当に大丈夫?」と心配されることもありましたが、実際には最寄りのタカラベルモント金沢営業所の方と密に連携を取ってくださっていたので、オンラインと対面の両方で支えられているという安心感がありました。「こんなこと聞いてもいいのかな?」と迷うような些細な質問も、サロンワークの合間にLINEで送ることができ、その都度誠実に答えていただけたことも本当に助かりました。

全面的なサポートのお陰で叶えたスムーズな開業

開業準備において、一番苦労したのは物件探しでした。当時の私は、美容室として使える物件には設備面などの厳しい条件があることすら知りませんでした。そんな私のために、タカラベルモント金沢営業所の方が実際に物件探しに同行し、プロの視点から現地のチェックやアドバイスをしてくださいました。自分一人では決して気づけなかったリスクを事前に回避できたことは、とても心強かったです。
また、相談する中で「開業後1年間の収支予定」を具体的な数字として提示してもらえたことで、それまではどこか漠然としていた「お店を持つ」ということが一気に現実的になり、経営者としての自覚を育む助けになりました。
機材の選定から内装工事、商材の準備に至るまで、タカラベルモントさんが1から10まで全面的にサポートしてくださったお陰で、大きなトラブルもなくスムーズにオープンを迎えることができました。何も分からなかった私が開業できたのは、まさにこの伴走があったからこそだと感じています。

自分の「やりたいこと」をメニュー化し、売上アップに繋がった

私のサロン「OTO」は、「日常の中にちょっとした癒しの時間を取り入れる」ことをコンセプトにしています。これは、以前からお客様たちと「こんな場所があったらいいよね」と語り合っていた理想を詰め込んだものです。自分と同じ年代の方が抱える髪や頭皮の悩みに寄り添い、一緒に解決していける「目的地になるような場所」を目指しました。

メニュー作りでは、特にこだわっていたヘッドスパをどうビジネスとして成立させるかが課題でした。そこで担当者さんからいただいたのが、「全てのメニューにヘッドスパを組み込む」という提案でした。このアイデアを採用したところ、お客様から大好評をいただき、結果として売上の向上に繋がったと感じています。自分の「やりたいこと」を、プロの視点で「売れるメニュー」にしてもらえたことは、タカラベルモントさんの開業相談を通じて得られた非常に大きな収穫でした。

開業について悩んでいる人へアドバイス

お店をオープンしてから半年が経ちましたが、経営は想像以上に順調です。開業前に一緒に立てた目標や収支計画を常に意識することで、迷いなく着実に進むことができています。以前のような長距離通勤がなくなり、地元で働けるようになったことで日曜日にお休みをいただいて家族との時間を作ることができるようになり、理想のワークライフバランスを叶えられていると感じています。

もし今、「いつかはお店を持ちたいけれど、何から始めればいいか分からない」と一人で悩んでいるなら、まずは誰かにその想いを話してみてください。自分一人の頭で考えているだけでは見えてこない可能性を、プロのアドバイスが必ず引き出してくれるはずです。

私が利用した無料のLINE相談は、忙しいサロンワークの合間でもスムーズにやり取りができるので、開業に向けた一歩を踏み出すきっかけとして本当にオススメです。その小さな一歩が、美容師としての働き方の選択肢を広げてくれる転機になるかもしれません。 
開業支援担当者
タカラベルモント 今里
営業担当者
タカラベルモント 瀬溝
デザイナー
タカラスペースデザイン 立石
化粧品(ルベル)担当者
タカラベルモント 藤田

美容室・理容室開業をお考えの方はお気軽にご相談ください!